- Woonoppervlakte
- Circa 94 m²
- Perceeloppervlakte
- Circa 6608 m²
- Bouwjaar
- Gebouwd in 1966
- Aantal kamers
- 6 kamers (4 slaapkamers)
Voordat deze woning op de vrije markt wordt aangeboden, krijgen huurders van een sociale huurwoning van Portaal, Woonwaarts, Talis en SSH& in de gemeenten Nijmegen, Wijchen, Beuningen en Druten voorrang om deze woning te kopen. Wil je als huurder in aanmerking komen voor deze voorrangsregeling? Maak dan uiterlijk 20 november 2025 je interesse kenbaar bij de verkopende makelaar. Daarna is er geen garantie op bezichtigen en deelname.
Fijne tussenwoning in Wijchen – op steenworp afstand van het centrum!
Deze ruime tussenwoning in het hart van Wijchen biedt alles wat je nodig hebt: comfort, rust én alle voorzieningen binnen handbereik. Winkels, scholen, horeca en openbaar vervoer liggen op loopafstand.
Binnen vind je een lanbouw met keuken, waardoor de leefruimte op de begane grond extra royaal aanvoelt. De woning beschikt over vier slaapkamers, stuk voor stuk naar eigen smaak in te richten — ideaal voor een gezin, thuiswerkplekken of hobbyruimtes.
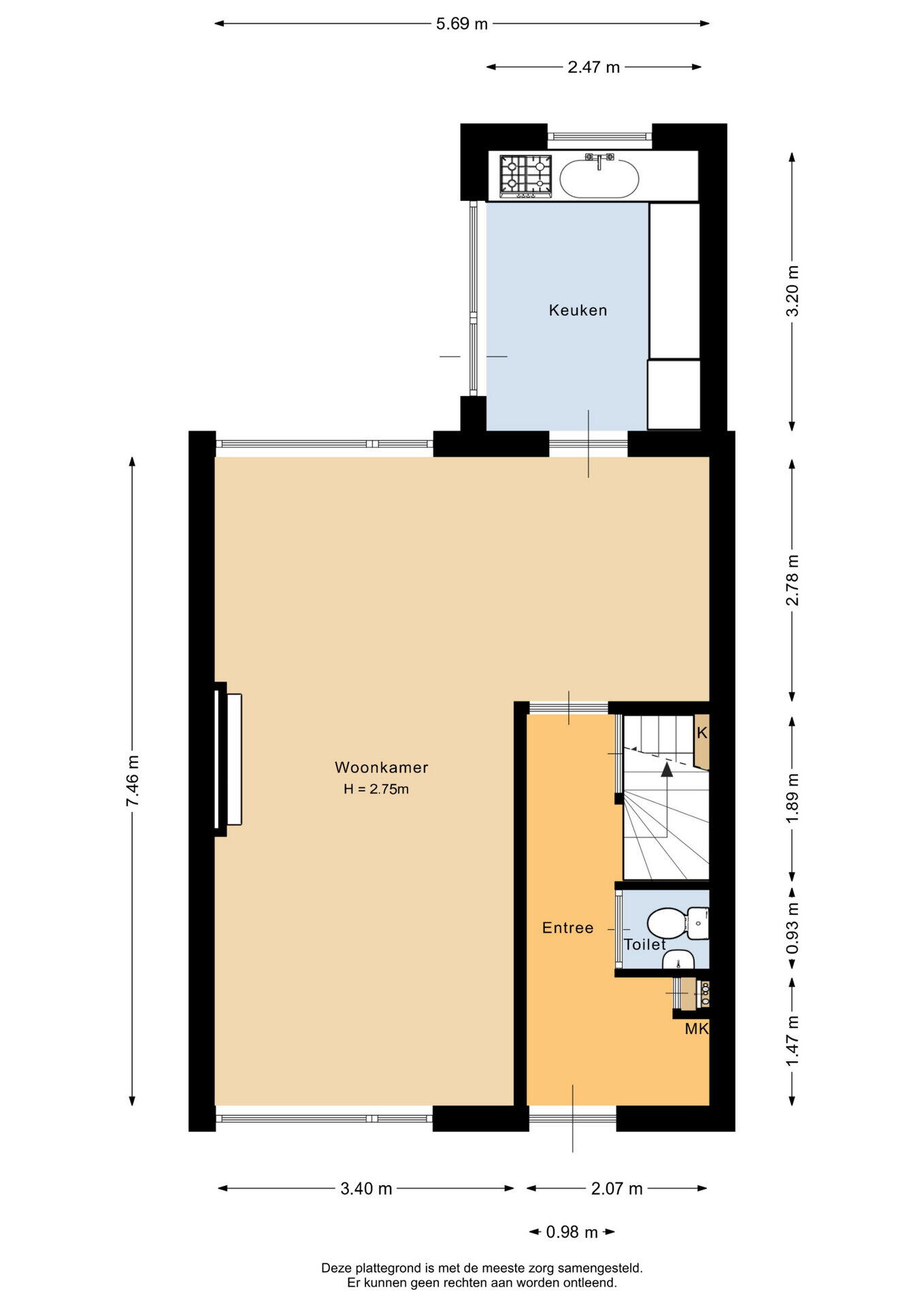
Begane grond
entree, hal met meterkast, eenvoudig toilet, doorzonkamer, de keuken bevindt zich in de aanbouw aan de achterzijde. Vanuit de keuken toegang tot achtertuin.
Eerste verdieping
overloop, 4 slaapkamers, eenvoudige badkamer met douche en wastafelmeubel.
Tweede verdieping
zolderverdieping bereikbaar d.m.v. vlizotrap, opstelplaats c.v.-combiketel en bergruimte.
Bijzonderheden:
- CV-ketel bouwjaar 2024;
- Achtertuin op het noorden gelegen met stenen berging en achterom;
- Het perceel moet nog officieel worden ingemeten;
- Projectnotaris Bruggink & van Beek Notarissen
- De taxatiewaarde is € 325.000,-, deze wijkt af van de vraagprijs. Vraagprijs is leidend.
- Zelfbewoningsplicht/verhuurverbod en anti-speculatiebeding van 4 jaar van toepassing;
- KOOP NU TIJDELIJK MET EEN GUNSTIGE GEMEENTELIJKE STARTERSLENING: EXCLUSIEF VOOR STARTERS, VRAAG
NAAR DE VOORWAARDEN! OP = OP.
Overdracht
- Vraagprijs
- € 330.000 k.k.
- Status
- Verkocht onder voorbehoud
- Aanvaarding
- In overleg
Bouw
- Object type
- Eengezinswoning, tussenwoning
- Soort bouw
- Bestaande bouw
- Bouwjaar
- 1966
- Soort dak
- Zadeldak bedekt met pannen
Oppervlakte en inhoud
- Woonoppervlakte
- 94 m²
- Perceeloppervlakte
- 6608 m²
- Inhoud
- 404 m³
- Overige inpandige ruimte
- 16 m²
- Externe bergruimte
- 15 m²
Indeling
- Aantal kamers
- 6 kamers (4 slaapkamers)
- Aantal badkamers
- 1 badkamer
- Badkamervoorzieningen
- Douche, wastafelmeubel
- Aantal woonlagen
- 3 woonlagen
Energie
- Energielabel
- B
- Energielabel registratie
- 10-07-2018
- Isolatie
- Dakisolatie, muurisolatie, dubbel glas, hr glas
- Verwarming
- Cv-ketel
- Warm water
- Cv-ketel
- Cv ketel
- Combiketel gas gestookt uit 2024 (eigendom)
Buitenruimte
- Ligging
- Aan rustige weg, in woonwijk
- Tuin
- Achtertuin, voortuin
- Afmetingen achtertuin
- 74 m² (13 meter diep en 5.7 meter breed)
- ligging tuin
- Gelegen op het noorden en bereikbaar via achterom
Bergruimte
- Schuur / berging
- Vrijstaand steen
Garage
- Soort garage
- Geen garage
Parkeergelegenheid
- Soort parkeergelegenheid
- Openbaar parkeren
Indicatie hypotheeklasten
Eigen inleg:
Spaargeld / overwaarde
Rente:
Laagste 10-jaars rente
Laagste 10-jaars rente
2,88% - Woonfonds Groen Woonge... - NHG
3,1% - Argenta Groen Hypotheek... - 80%
Laagste 20-jaars rente
3,19% - Centraal Beheer Groen... - NHG
3,47% - Argenta Groen Hypothee... - 80%
Laagste 30-jaars rente
3,34% - Centraal Beheer Groen... - NHG
3,64% - Argenta Groen Hypothee... - 80%
Hypotheek:
Bruto maandlasten: € 0 p/m
Netto maandlasten: € 0 p/m
Hoe berekenen we dit?
Het rentepercentage is gebaseerd op de laagste 10 jaars vaste rente voor één hypotheekdeel. De vermelde rente (2.88% met NHG) is gecontroleerd op 07-12-2025. Deze berekening is gebaseerd op een annuïteitenhypotheek die volledig wordt afgelost, waarbij de maandlasten gedurende de gehele looptijd gelijk blijven. De werkelijke rente en netto maandlasten kunnen variëren, afhankelijk van uw persoonlijke situatie en de hypotheekverstrekker. Raadpleeg een financieel adviseur voor een nauwkeurige berekening en advies. Aan deze berekening kunnen geen rechten worden ontleend; het dient enkel als indicatie.
Documentatie
Kadastrale kaart
Leefomgeving
Plattegronden PDF
WOZ waarderapport
BAG uittreksel
Brochure
Bezoek onze website
Inloggen move.nl
Bezichtiging
Bod uitbrengen
Waardebepaling
Zoekopdracht
Alles downloaden
Zonnegrenzen bekijken
Op de kaart
Inwoners in Wijchen
Cijfers voor postcodegebied 6601
- Totaal aantal inwoners
- 36260 inwoners
- Mannen
- 49%
- Vrouwen
- 51%
Inwoners in Wijchen
Cijfers voor postcodegebied 6601
- tot 15 jaar
- 12%
- 15 tot 25 jaar
- 13%
- 25 tot 35 jaar
- 19%
- 45 tot 65 jaar
- 34%
- 65 en ouder
- 21.7%
Huishoudens in Wijchen
Cijfers voor postcodegebied 6601
- Eenpersoons zonder kinderen
- 27%
- Meerpersoons zonder kinderen
- 32%
- Huishoudens zonder kinderen
- 59%
Huishoudens in Wijchen
Cijfers voor postcodegebied 6601
- Huishoudens met één kind
- 20%
- Huishoudens met meerdere kinderen
- 21%
- Huishoudens met kinderen
- 41%
Woningen in Wijchen
Cijfers voor postcodegebied 6601
- Woningen voor 1945
- 2%
- Woningen tussen 1945 en 1965
- 5%
- Woningen tussen 1965 en 1975
- 49%
- Woningen tussen 1975 en 1985
- 19%
- Woningen tussen 1985 en 1995
- 3%
Woningen in Wijchen
Cijfers voor postcodegebied 6601
- Woningen tussen 1995 en 2005
- 5%
- Woningen tussen 2005 en 2015
- 15%
- Woningen na 2015
- 2%
- Huurwoningen
- 40%
- Koopwoningen
- 60%
Overige in Wijchen
Cijfers voor postcodegebied 6601
- Gemiddelde WOZ waarde
- € 309.000,-
- Personen onder de 65 met uitkering
- 10%
Overige in Wijchen
Cijfers voor postcodegebied 6601
- Adressen per km²
- 1700
- Stedelijkheid (schaal 1 op 5)
- 80%
Korte feiten over Wijchen
Wijchen is de hoofdplaats van de gemeente Wijchen in de Nederlandse provincie Gelderland. De plaats is met 36.625 inwoners (op 1 januari 2021) de grootste in de gelijknamige gemeente van bijna 41.000 inwoners. Wijchen ligt aan de zuidgrens van Gelderland, tegen Noord-Brabant aan.
Indien u vragen heeft of u wilt een bezichtiging inplannen, dan kunt u gebruik maken van het formulier hiernaast. Er zal daarna op korte termijn contact met u worden opgenomen.
St. Annastraat 18
6524 GC, Nijmegen
024 360 7055 nijmegen@driessenmakelaardij.nl www.driessenmakelaardij.nlContact opnemen
Al 40 jaar uw huismakelaar
Ondernemende makelaar met ambitie
U wilt een huis kopen, verkopen of laten taxeren. Het liefst schakelt u een betrouwbare makelaar in bij u in de buurt. Maar hoe vindt u precies de makelaar die het best bij u past? Het aanbod is al zo groot.
Driessen Makelaardij maakt uw keuze een stuk gemakkelijker. Hoe? Allereerst zijn we al veertig jaar een begrip in de regio. Met een kantoor in Wijchen en in Nijmegen kennen wij de lokale huizenmarkt op ons duimpje. En niet onbelangrijk: de huizenmarkt kent ons. ‘Want vaak is de eerste stap van een woningzoeker de stap naar ons kantoor.’ Hierdoor weten wij vraag en aanbod snel bij elkaar te brengen en perfect in te spelen op de wensen van klanten en potentiële klanten. Bovendien zijn we aangesloten bij de NVM, de grootste brancheorganisatie in de makelaardij. Onze mensen zijn dus uitstekend in staat het hele aan- en verkooptraject van begin tot eind professioneel te begeleiden.
Uw ambitie is onze ambitie. Dat wil zeggen: u verwacht van ons dat we tot het uiterste gaan u die kwaliteit te bieden waarom we al zo lang bekend staan. Daar mag u ons aan houden!
Nieuwste reviews
-
St. Jacobslaan 37
Vriendelijke makelaars, maar gebrek aan betrokkenheid en communicatie (ivm overdracht vakantie). Tegen onze wens in bezichtiging op reservel...
-
Fransen van de Puttestraat 9
De makelaar beschikt over goede kennis van de lokale markt. Bezichtigingen werden snel en efficiënt ingepland. De prijs-kwaliteitverhouding...
-
Antiloopstraat 27
Het contact met de makelaar verliep goed en accuraat met duidelijke informatie en afspraken, een prettige bejegening en vakkundig. Wij zijn...